Brunn am Gebirge
Projektübersicht
Wohnen in Brunn am Gebirge – 9 exklusive Einheiten mit Garten
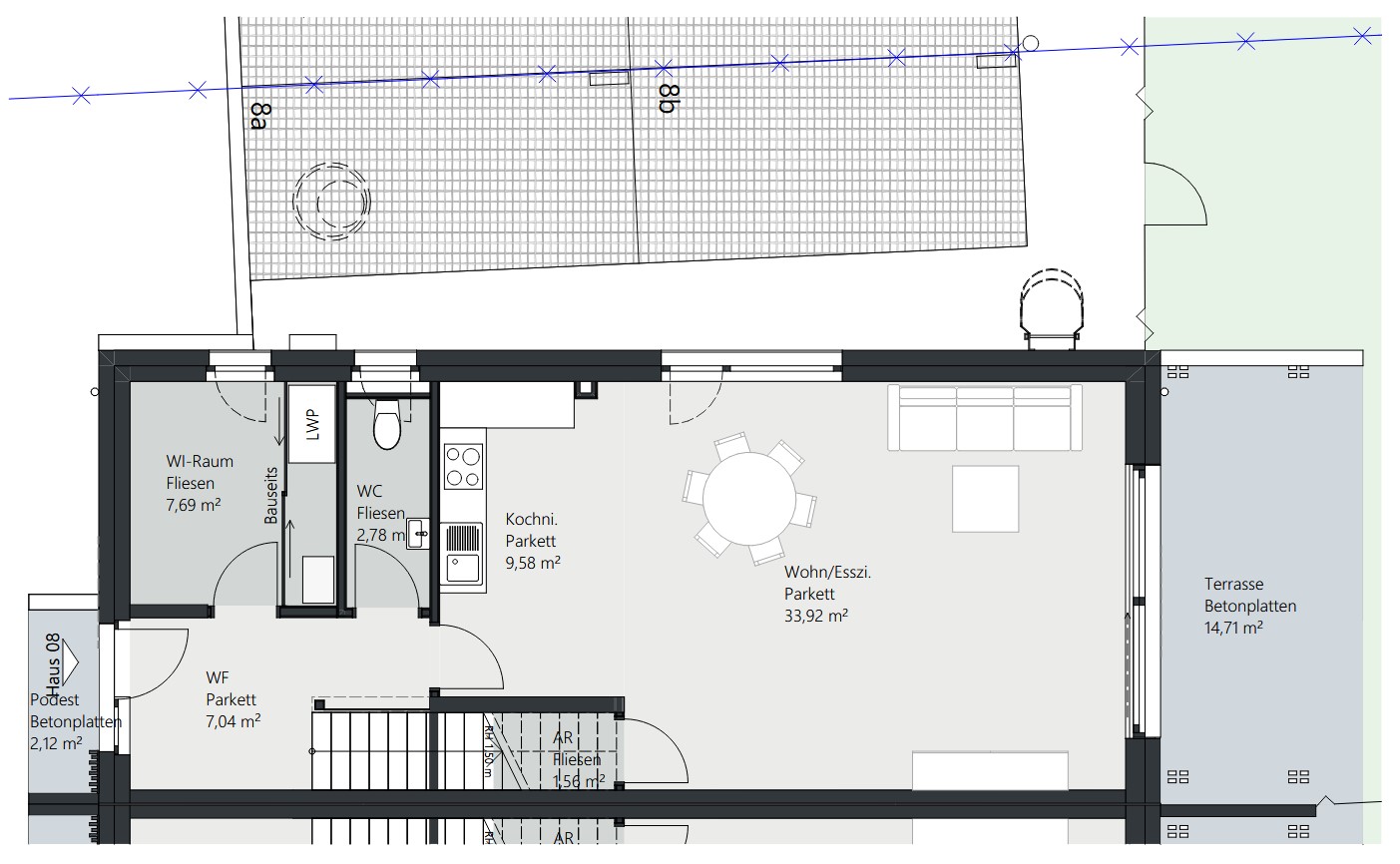
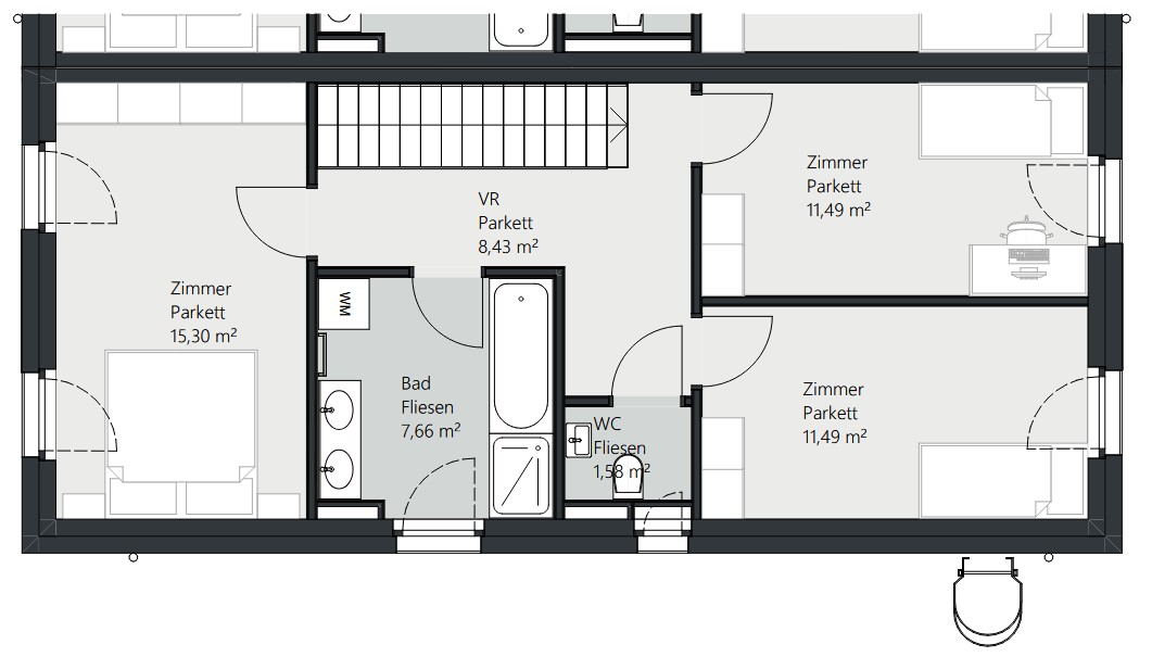
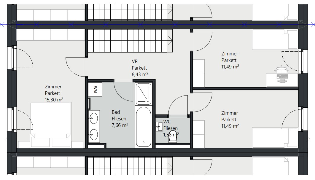
Inmitten der begehrten Lage von Brunn am Gebirge entsteht ein hochwertiges Wohnprojekt mit insgesamt 9 stilvollen Einheiten – bestehend aus Reihenhäusern, Eckreihenhäusern und Doppelhaushälften. Jede Einheit überzeugt mit durchdachten Grundrissen, 4 lichtdurchfluteten Zimmern, großzügigen Wohnflächen zwischen 107 m² und 123 m² sowie privaten Eigengärten und Terrassen. Ob kompakt oder weitläufig – hier findet jede Lebensphase den passenden Raum. Die Kombination aus modernem Wohnkomfort, naturnahem Umfeld und guter Anbindung an Wien macht dieses Projekt zum idealen Zuhause für Familien, Paare und alle, die urbanes Leben mit Ruhe und Grün verbinden möchten.
Die Häuser
108-122 m²
Wohnfläche
4
Zimmer
74-450 m²
Garten
699-989 k
Preis
Lage & Anlage
Wohnen mit Lebensqualität in Brunn am Gebirge
Die Anlage befindet sich in ruhiger, familienfreundlicher Lage von Brunn am Gebirge – einer charmanten Gemeinde mit hoher Lebensqualität im Süden Wiens. Umgeben von viel Grün, bieten die 9 Wohneinheiten ein naturnahes Wohngefühl mit gleichzeitig hervorragender Anbindung: Der Bahnhof Brunn-Maria Enzersdorf, Einkaufsmöglichkeiten, Schulen und Freizeitangebote sind schnell erreichbar. Die durchdacht geplante Anlage überzeugt mit moderner Architektur, großzügigen Gärten und einer harmonischen Einbettung in die Umgebung. Hier trifft entspannte Nachbarschaft auf urbanen Komfort – perfekt für alle, die Natur und Stadt gleichermaßen schätzen.
Impressionen
Die Ausstattung dieser Häuser vereint stilvolles Design mit durchdachtem Komfort und macht das tägliche Leben nicht nur einfacher, sondern auch schöner. Die moderne Architektur mit klaren Linien wird durch hochwertige Details ergänzt – wie großzügige Eigengärten mit Pergola und fix montierter Gartenhütte, stilvolle Eichenparkettböden und großformatige Feinsteinzeugfliesen. Die markante Sichtbetontreppe mit Glasgeländer verbindet Ästhetik mit Funktion, während die Bäder mit Markenprodukten wie Laufen und Grohe, bodenebenen Duschen und Badewannen für Wohlfühlmomente sorgen. 3-fach verglaste Fenster mit Alu-Deckschale, elektrische Rollläden und Raffstores bieten optimale Licht- und Wärmeregulierung. Terrassen mit frostsicherem Wasseranschluss und begrünte Flachdächer schaffen ein stimmiges Gesamtbild. Und auch an morgen ist gedacht: Jedes Haus ist bereits für eine E-Ladestation vorbereitet.
Individuell
Ein Raum – viele Möglichkeiten: Ob als praktischer Hauswirtschaftsraum, entspannende Sauna oder ruhiges Homeoffice – dieser flexibel nutzbare Bereich lässt sich ganz nach Ihren Bedürfnissen gestalten. So entsteht zusätzlicher Raum, der Ihr Zuhause noch individueller und funktionaler macht.



Verfügbare Einheiten
Haus 1 - Verfügbar
Details
114 m²
Wohnfläche
4
Zimmer
88 m²
Garten und Terasse
749.000
Preis
Haus 2 - Verfügbar
Details
114 m²
Wohnfläche
4
Zimmer
88 m²
Garten und Terrasse
699.000
Preis
Haus 3 - Verfügbar
Details
114 m²
Wohnfläche
4
Zimmer
88 m²
Garten und Terrasse
699.000
Preis
Haus 4 - Verfügbar
Details
114 m²
Wohnfläche
4
Zimmer
199 m²
Garten und Terrasse
749.000
Preis
Haus 5 - Verfügbar
Details
108 m²
Wohnfläche
4
Zimmer
464 m²
Garten und Terrasse
899.000
Preis
Haus 6 - Verfügbar
Details
108 m²
Wohnfläche
4
Zimmer
177 m²
Garten und Terrasse
749.000
Preis
Haus 7 - Verfügbar
Details
108 m²
Wohnfläche
4
Zimmer
302 m²
Garten und Terrasse
879.000
Preis
Haus 8 - Verfügbar
Details
122 m²
Wohnfläche
4
Zimmer
302 m²
Garten und Terrasse
949.000
Preis
Haus 9 - Verfügbar
Details
Kontaktieren Sie uns
Weitere Projekte
Jedes unserer Projekte steht für das, was uns wichtig ist: klare Architektur, sinnvolle Grundrisse und nachhaltige Qualität, die sich unsere Kundinnen und Kunden leisten können – und auch leisten wollen.
Werfen Sie einen Blick auf unsere aktuellen Projekte und entdecken Sie, wie durchdachter Wohnraum in der Praxis aussieht. Vielleicht ist auch Ihr neues Zuhause schon dabei.
Häuser ab 115 m² mit 4,5 Zimmern in Bau
Raasdorf
Häuser ab 120 m² mit 4,5 Zimmern in Planung
Mistelbach
Häuser ab 120 m² mit 4,5 Zimmern in Planung
Orth a.d. Donau
Moderne Architektur und kluge Raumaufteilung treffen auf ruhige Lage und naturnahes Wohnen.
Häuser
ab 115m²
4,5 Zimmer
in Bau
ab €459.000
Mistelbach
Moderne Wohnqualität und großzügige Privatgärten treffen auf Kleinstadtflair und beste Anbindung.
Häuser
ab 120m²
4,5 Zimmer
in Planung
ab €459.000
Orth a.d. Donau
Ländliche Ruhe und naturnahe Umgebung treffen auf moderne Bauweise und großzügige Freiflächen.
