Mistelbacher Lebensqualität Doppelhaushälfte, 4 Zimmer, 148 m², 2 Stellplätze, Seezugang

2130 Mistelbach, Doppelhaushälfte zum Kauf

Objektdaten

  • Objekt-ID
    Mi_2
  • Objekttypen
    Doppelhaushälfte, Haus
  • Adresse
    Am Seepark 5b
    2130 Mistelbach
    Niederösterreich
  • Lage
    Wohngebiet
  • Etagen im Haus
    2
  • Wohnfläche ca.
    147,99 m²
  • Balkon-/Terrassen­fläche ca.
    15 m²
  • Gartenfläche ca.
    87,70 m²
  • Zimmer
    4
  • Schlafzimmer
    3
  • Badezimmer
    1
  • Separate WC
    1
  • Terrassen
    1
  • Heizungsart
    Fußbodenheizung
  • Wesentlicher Energieträger
    Luft/Wasser Wärmepumpe
  • Zustand
    Erstbezug
  • Heizwärmebedarf (HWB)
    29,00 kWh/(m²·a) (Klasse B)
  • Gesamtenergieeffizienz-Faktor (fGEE)
    0,50 (Klasse A++)
  • Stellplätze gesamt
    2
  • Stellplätze
    2
  • Verfügbar ab
    Jetzt
  • Käufer­provision
    3 % zzgl. USt.
  • Kaufpreis
    529.000 EUR

Ausstattung / Merkmale

  • ✓ Badewanne
  • ✓ Balkon/Terrasse Süd
  • ✓ Dusche
  • ✓ Fertigparkettboden
  • ✓ Garten
  • ✓ Garten/Gartennutzung
  • ✓ Seniorengerecht
  • ✓ Separates WC
  • ✓ Terrasse

Energieausweis

HWB SK 29,00 0,50 f GEE A++ A+ A B C D E F G A++ B

Objekt­beschreibung

MODERNE DOPPELHAUSHÄLFTEN IN MISTELBACH

Dieses moderne Doppelhaus befindet sich in der neu entstandenen Siedlung "Am Seepark" im Norden von Mistelbach - einer ruhigen und zeitgemäßen Wohngegend mit hoher Lebensqualität.

Das besondere Highlight der Anlage ist der zentral gelegene, künstlich angelegte See. Er verleiht der Siedlung ein einzigartiges Ambiente und sorgt für ein Gefühl von Ruhe und Natur - direkt vor der eigenen Haustüre.

Die Kombination aus durchdachter Architektur, moderner Ausstattung und guter Infrastruktur macht diese Immobilie zu einem idealen Zuhause für Familien, Paare und Pendler.

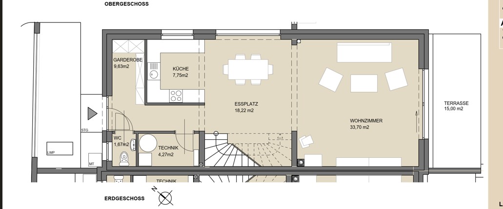
Die Doppelhaushälfte verfügt über ca. 148 m² Wohnfläche mit 4 durchdacht geschnittenen Zimmern. Großzügige Fensterflächen sorgen für helle, freundliche Räume und ein angenehmes Wohngefühl. Der offene Wohn- und Essbereich bildet das Herzstück des Hauses und bietet Platz für gemeinsames Kochen, Gespräche und entspannte Stunden.

Die Häuser werden schlüsselfertig übergeben. Hochwertige Materialien, klare Linien und eine funktionale Raumaufteilung sorgen für zeitlose Wohnqualität.

Ein Zuhause, das Raum gibt – für heute und für die Zukunft.

Jetzt anfragen und Beratungstermin vereinbaren!

Kontaktdaten

Phil & Partner Immobilien GmbH,

Lage

Kindergarten 660 m | Grundschule 970 m | Realschule 1,99 km | Fernbahnhof 1,53 km | Autobahn 5,47 km | Bus 460 m | Einkaufsmöglichkeiten 850 m | Gaststätten 790 m 

Direktanfrage

* Pflichtangaben
 SSL-verschlüsselt
Immobiliendaten-Import und Darstellung für WordPress: WP-ImmoMakler®